KARUIZAWA Funny hours | Villa in Karuizawa

1 Bedroom Villa in Kitasaku-gun, Karuizawa
Close to snowboarding, skiing, and more, this smoke-free villa brings it all within reach. Thanks to the convenient uncovered onsite parking, you can either leave your vehicle behind and let your feet make short work of the 9-minute walk to Musee le Vent, or easily tackle the quick 4-minute drive to Hoshino Onsen Hot Spring.
The kitchen is equipped with an oven, a stovetop, and a freezer, as well as a microwave, cookware, and a rice cooker. Enjoy the free WiFi and TV. Bathroom amenities include a hair dryer, towels, and slippers. And you won't have to pack extra clothes, because you'll also have access to laundry facilities.
Amenities
Facility Overview
-
Heating
-
Slippers
-
Toothbrush and toothpaste
-
Towels provided
-
Hair dryer
-
Shower/tub combination
-
Bed sheets provided
-
3 bedrooms
-
Shared microwave
-
Cookware/dishes/utensils
-
Oven
-
Refrigerator
-
Kitchen island
-
Griddle
-
Freezer
-
Microwave
-
Stovetop
-
Laundry facilities
-
All-in-one washer and dryer
-
Onsite parking includes off-street options
-
Free uncovered self parking on site
-
No pets allowed
-
Smoke-free property
-
No elevators
-
TV
-
TV in a common area
-
Japanese
-
Communal living room
-
Safe
-
Free WiFi
-
Carbon monoxide detector not reported (host has not indicated whether there is a carbon monoxide detector on the property; consider bringing a portable detector)
-
Smoke detector not reported (host has not indicated whether there is a smoke detector on the property)
-
Close to a ski area, ski runs, and ski lifts
-
Hot springs nearby
Policies
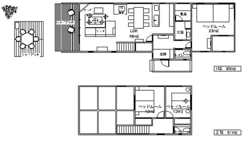
Room Arrangement
Room Info | Facilities |
---|---|
Villa
Room Size:
m2
|
GeneralBed count minimum 6, Private bathroom, Number of bedrooms - 3, Bed count maximum 6, Number of living rooms 1, Number of bathrooms - 1 |
FAQ's
Is this KARUIZAWA Funny hours pet-friendly for guests?
No, pets are not allowed at this property. Check the guest reviews to learn what guests had to share.
Does the KARUIZAWA Funny hours have a swimming pool?
No, this KARUIZAWA Funny hours does not have a swimming pool. Check the Facility Overview section for details about the pool and other available facilities.
How much does it cost per night to stay in KARUIZAWA Funny hours?
Best-rates for the KARUIZAWA Funny hours starts from $600 per night with includes Parking, Bedding/Linens, Wellness Facilities, Internet, Kitchen, Laundry, TV, Security/Safety, Fireplace/Heating, Child Friendly At SunSki Resorts, we pair every traveler with their perfect accommodation, complete with all necessary facilities. Whether you're traveling with a group, friends, family, or pets, we have the ideal rental for you.
Is KARUIZAWA Funny hours a family-friendly place to stay?
Based on the information we have received from the owner or our partner, this is considered to be a family-friendly property. Families have rated this villa 3 stars or guests have recommended them suitable for families. As reported by the owner or manager, the villa has specified that children are welcome. Please see details about suitability for your family or inquire with the property to learn more.
Is the KARUIZAWA Funny hours wheelchair accessible or offer services for disabled guests?
Based on the information received from our partner, the KARUIZAWA Funny hours has not specified they are wheelchair accessible. Likewise, there is not an elevator specified as being available at the property. Specific accessibility details may be addressed in the property details section of this page.
What is the minimum night stay policy for the KARUIZAWA Funny hours?
Based on the information reported by the owner or manager, the KARUIZAWA Funny hours indicates 1 day stay policy at this villa. Guests are cautioned that the minimum stay policy may differ based on seasonality or availability and may be at the discretion of the owner or manager.
What cancellation policy is in place for KARUIZAWA Funny hours?
Based on the information reported by the owner or manager, details for the cancellation policy for the KARUIZAWA Funny hours are as follows: Cancellation policy Guests are cautioned that the cancellation policy may differ based on seasonality, availability, or current travel restrictions. Guests should also be aware that this policy may be subject to change and should be confirmed prior to booking. More details may be available on this page in the property description. However, early check-in or late check-out can sometimes be negotiated between the guest and the owner or the manager of this property.