Room 01 - Comfort in the heart of the Art District | House in Québec

1 Bedroom House in Montcalm, Québec
Established in a century-old Tudor-style mansion, Le Gîte du Quartier des Arts is the best place to discover Quebec on foot. According to any chosen direction, everything is about 15-minute walk. We are close to St-Jean-Baptiste, St-Roch and Limoilou neighborhoods. We are close as well to the Plains of Abraham, Cartier and Grande-Allée streets and to the famous Petit Champlain.
FREE PRIVATE PARKING and EV CHARGING STATION offered on site ! Establishment number 150916.
This flat has a total of three units. A shared entrance gives access to all our guests and a common hallway takes them to their respective unit. For easier communications and to respond more quickly to your needs, we live on the ground floor of the house with Blue, our beautiful and friendly Bernedoodle dog. You may come across Blue inside the fenced yard or in the hallway leading to our office, but at no time does she circulate in the guest rooms. Although this breed is known to be hypoallergenic, people with severe allergies should consider this aspect before making their reservation.
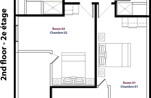
For more information on this property, you may refer to the plan included with this add, more specifically to the light blue area shown on the plan.
The listed price includes all 3 taxes required by law in Quebec. Housing tax: 3,5% per night. Goods and Services Tax (GST): 5% and Quebec Sales Tax (QST): 9,975%.
In order to facilitate your stay, we are available to respond quickly to your questions either by email or text message. Pamphlets and brochures are available in the shared entrance, which will give you up-to-date information for the discovery of Quebec.
Newly appointed as the "Art District", Montcalm is distinguished by the diversity of its commercial frame which includes more than 200 institutions of all kinds. Amongst those, you will find restaurants, bars, cafes, art galleries, museums, cinema, delis, trendy shops, health services and much more, located less than one kilometer away from our place. A booming sector awaiting to be discovered!!
You will be able to enter the house with a private code that will be given to you prior to your arrival. Access to your apartment is done through the main guests' entrance, which is shared with our other guests. For your convenience, you will find in the entrance a fridge and basic kitchen items. We courteously offer coffee and refreshments which will be available to you during your stay.
With this unique looking room, you will find all the comfort and amenities needed for an unforgettable stay in Quebec. Located on the second floor, this warm and cozy bedroom gives you access to a bedroom and a private bathroom located nearby in the hallway. High quality hypoallergenic linen and towels have been chosen to favor a comfortable and relaxing stay. The room is furnished with a Queen size bed, a resting and eating area and basic kitchen items. We courteously offer coffee and refreshments which will be available to you during your stay. The room is also equipped with Wi-fi internet, HD TV with cable, Netflix and central air conditioning during summertime. Click on the following link for 3D virtual tour of this room:
https://my.matterport.com/show/?m=ZDWpoyQ9JdJ
To move quickly elsewhere in the city, a public bus line is available just 150 meters from the flat. There are also taxi cars parked nearby that can take you to the Jean-Lesage International Airport within 15 minutes if needed.
When needed, free private parking is available.
City bus is now an option from the airport to our place!! Take Bus #76 (every 30 min.) that goes directly to the bus station. Take a second bus, either #800 or #801 (every 10 min.) and get off at "Brown" station on René-Lévesque (2 blocks from our home).
Room 01 - Comfort in the heart of the Art District is located in Montcalm. Room 01 - Comfort in the heart of the Art District provides accommodation, featuring Pool, TV, Bedding/Linens, among other amenities. This House features Pool, TV, Bedding/Linens, to make your stay a comfortable one.
Room 01 - Comfort in the heart of the Art District has 1 Bedroom , 1 Bathroom, and max occupancy of 2 people. The minimum rental for this property is 1 nights, but this can change depending on the season you plan on staying. Previous guests have given good rated it, and VRBO labeled it a top-rated House because of the excellent services rendered by the owner or manager of this House, and has consistently provided great experiences for their guests. Most families or guests that use it recommend it to their friends and some of them are repeat guests. House has a friendly neighborhood, and the Montcalm has interesting places to visit. If you want to learn more about the House in Montcalm, such as places to visit and things to do nearby, you can check below to learn more.
Amenities
Facility Overview
-
Hair dryer
-
Private bathroom
-
Shower
-
Soap
-
Toilet paper
-
Towels
-
Dryer
-
Iron/ironing board
-
Air conditioning
-
Bed sheets
-
Heating
-
Hypo-allergenic bedding
-
Coffee/tea maker
-
Cookware/dishes/utensils
-
Dining table
-
Electric kettle
-
Kitchen
-
Kitchenette
-
Local meal delivery service
-
Microwave
-
Refrigerator
-
Toaster
-
Electric car charging station on site
-
Onsite parking includes off-street options
-
Birdwatching
-
Cross-country skiing
-
Cycling
-
Fitness center access
-
Golfing
-
Health/beauty spa
-
Ice skating
-
Skiing
-
Snowboarding
-
Swimming
-
Wildlife and game walks
-
Cable/satellite channels
-
Netflix
-
Streaming services
-
TV
-
Smoke-free property
-
English
-
French
-
Dining table
-
Kitchen
-
Kitchenette
-
Microwave
-
Refrigerator
-
Available in all rooms: Free WiFi
-
Available in some public areas: WiFi
-
Garden
-
Fenced yard
Policies
Reviews
FAQ's
Is this Montcalm house pet-friendly for guests?
No, pets are not allowed at this property. Check the guest reviews to learn what guests had to share.
Does the Montcalm house have a swimming pool?
Yes, this Montcalm house has a swimming pool. Check the Facility Overview section for details about the pool and other available facilities.
How much does it cost per night to stay in Montcalm house?
Best-rates for the Montcalm house starts from $125 per night with includes Laundry, Air Conditioner, Pool, TV, Bedding/Linens, Child Friendly, Kitchen At SunSki Resorts, we pair every traveler with their perfect accommodation, complete with all necessary facilities. Whether you're traveling with a group, friends, family, or pets, we have the ideal rental for you.
Is Montcalm house a family-friendly place to stay?
Based on the information we have received from the owner or our partner, this is considered to be a family-friendly property. Families have rated this house Good or guests have recommended them suitable for families. As reported by the owner or manager, the house has specified that children are welcome. Please see details about suitability for your family or inquire with the property to learn more.
Is the Montcalm house wheelchair accessible or offer services for disabled guests?
Based on the information received from our partner, the Montcalm house has not specified they are wheelchair accessible. Likewise, there is not an elevator specified as being available at the property. Specific accessibility details may be addressed in the property details section of this page.
What is the minimum night stay policy for the Montcalm house?
Based on the information reported by the owner or manager, the Montcalm house indicates 1 day stay policy at this house. Guests are cautioned that the minimum stay policy may differ based on seasonality or availability and may be at the discretion of the owner or manager.
What cancellation policy is in place for Montcalm house?
Based on the information reported by the owner or manager, details for the cancellation policy for the Montcalm house are as follows: Cancellation policy Guests are cautioned that the cancellation policy may differ based on seasonality, availability, or current travel restrictions. Guests should also be aware that this policy may be subject to change and should be confirmed prior to booking. More details may be available on this page in the property description. However, early check-in or late check-out can sometimes be negotiated between the guest and the owner or the manager of this property.